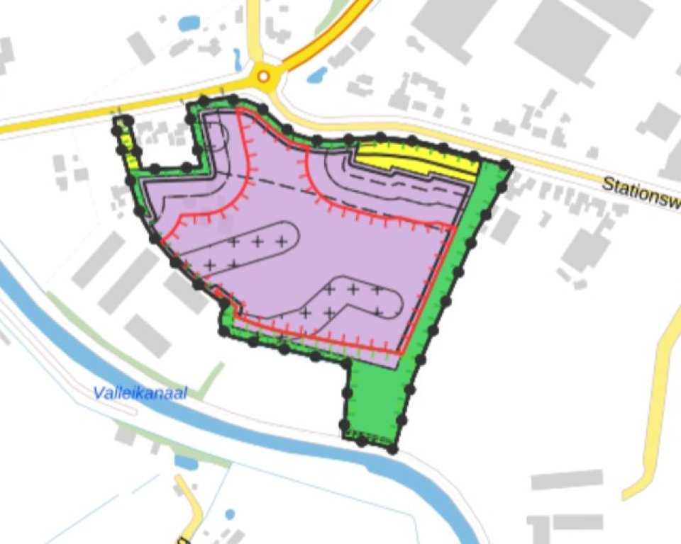
Bedrijventerrein 't Zwarte Land II-Stationsweg als ontwerp ter inzage
Bij de gemeente is een plan ingediend voor een nieuw bedrijventerrein aan de Stationsweg. Het college heeft ingestemd met het plan en heeft dit ter inzage gelegd.

Vanaf het moment dat het ontwerp ter inzage ligt krijgt iedereen zes weken de tijd om op het ontwerp te reageren door een zogenaamde zienswijze in te dienen.
Reacties verwerken en beantwoorden wij in een nota van zienswijzen. Het al dan niet gewijzigde plan met de nota sturen we vervolgens naar de gemeenteraad ter vaststelling.
Gemeenteraad besluit over plan
De data van de vergaderingen van de gemeenteraad (Vragenronde, Opinieronde en Gemeenteraadsvergadering) over dit onderwerp zijn nog niet bekend. We publiceren deze op www.scherpenzeel.nl/gemeenteraad en vermelden het in de nieuwsbrief (meld u aan via www.scherpenzeel.nl/nieuwsbrief), de Scherpenzeelse Krant en op sociale media.
U kunt zich ook aanmelden op Berichten over uw Buurt via www.overheid.nl. Zo laat de overheid u weten wat er speelt in uw eigen buurt.
Via deze link is het plan in te zien:
TAM-omgevingsplan 't Zwarte Land II-Stationsweg - Regels op de kaart - Omgevingsloket